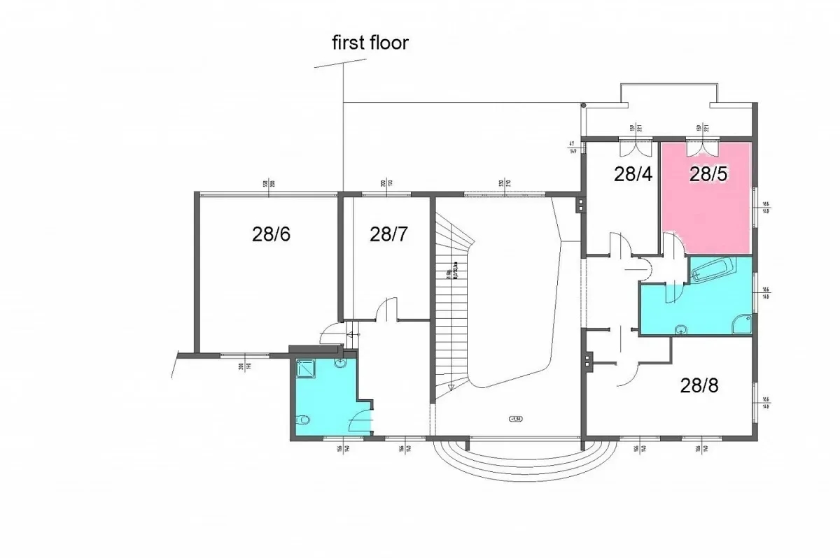
House plan & Rooms


Ground Floor | 28/1 Room David


Ground Floor | 28/2 Room Heidrun



Ground Floor | 28/3 Room Eva



Upper Floor | 28/4 Room Herbert


Upper Floor | 28/5 Room Gerti



Upper Floor | 28/6 Room Martin



Upper Floor | 28/7 Room Günther



Upper Floor | 28/8 Room Maria

